深圳市香蕉黄视频下载模具有限公司
電話: 86 - 755 - 2977 3559
電話: 86 - 755 - 29604615
傳真: 86 - 755 - 2960 4572
郵箱: kexiangmold@126.com
sales@cousunmold.com
地址: 深圳市光明新區公明街道西田社
區第二工業區24棟A區
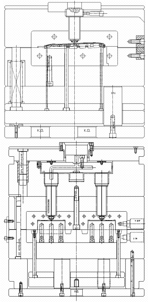
澆注係統是將熔融的塑料從注塑機引到模具的每一個型腔的機構,因此其參數和形式的差異均會影響到產品的品質。通過本課學習掌握流道和澆口的設計原則及不同流道及澆口的選擇。
一.流道
二.澆口
1.澆口的設計原則
A.澆口應開在產品斷麵較厚的部位、利於澆注
B.澆口位置的選擇,應使溶融料充模流程最短、減少壓力損失、
C.澆口位置的選擇,盡量避免使溶融料直接衝入型腔,否則會產生漩流、在產品上留下螺旋狀痕跡
D.澆口位置的選擇,應有利於排除型腔內的空氣
E.澆口位置的選擇,防止在產品表麵產生接合線
F.澆口位置的選擇,避免正對細小型芯,使其產生變形
G.大型或遍平薄壁件成型,可采用多澆口來防止翹曲、變形、缺膠。
H.澆口應盡量開在不影響產品外觀和裝配的部位,並盡量易於修整
I.在型腔能注滿的前提下,澆口數目是愈少愈好。
2.側澆口

適用於大部塑料、各種側邊允許澆口痕跡的製品,開在製品的邊緣或邊緣頂麵,又分標準入水、搭接入水和扇形入水,下圖中t為產品壁厚,L一般為(0.8—1mm)
3.點澆口
適用於流動性好的塑料,以及不允許側澆口,隻能在產品表麵進膠的產品 ,也可用於
一模多腔的模具

4.潛水澆口
適用於外觀不允許澆口痕跡及要求自動去除料把的模具

彎鉤形(又稱香蕉形或牛角尖形)澆口
適用於要求自動去除料把:外觀不允許澆口痕跡 ; 對一些特殊需要的產品(如產品的內表麵沒有位置加骨位或骨位不夠深)對PMMA等較硬透明料不適用
6.直接澆口:對大型單一型腔產品(如盆、桶、電視機後殼、複印機前後蓋等 )成型效果非常好。

三.唧咀
1.普通

2.斜唧咀


3.細水口用唧咀

四.熱唧咀
借助加熱裝置使澆注係統中的塑料不會凝固,也不會隨產品脫模,所以又稱無流道模。
1.熱流道的優點:
A.無廢料
B.壓力損耗小
C.可縮短成型周期
D.提高產品的質量
2.熱流道的不足:
A.模具高度增加
B.成本高
C.存在熱膨脹,需計算
a。T.E.=A×B×C=預熱膨脹補償
其中A:熱咀尺寸
B:溫差,即熱咀內的料溫減模溫
C:膨脹係數和鋼材的關係:0.00000736cm/℃
b.A1=A+T.E.
其中:A:室溫下熱咀的長度
T.E.:膨脹長度

五.定位圈
1.定位圈的尺寸參數



2.定位圈與唧咀的安裝標準


深圳市香蕉黄视频下载模具有限公司是一家專業的成人大香蕉视频設計生產工廠,致力於中型汽車模具, 電子產品, 家電類產品, 家用品, 工業應用, 農業, 醫療器械等產品模具設計開發及生產.長期以來, 香蕉黄视频下载通過給客戶提供價格低, 質量好, 交期準的服務, 贏得了海內外客戶的一致好評。可以通過香蕉黄视频下载公司官網(http://www.zzsite.com/)查看更多成人大香蕉视频產品、塑膠注塑產品、塑料產品等等一些定製模具開模。
上一篇: 深圳模具廠家,注塑模具的基本結構
下一篇: 深圳模具製造廠哪家好,模具的種類
掃一掃
添加微信谘詢
全國免費服務熱線
137-1421-9339